Radstation am Hauptbahnhof

Architekt: Ruwe, Ulrich

Gebäudetyp: Parkhaus   | Stadtteil: Mitte  | Baujahr: 2002-03  |
Straße: Bahnhofsplatz  

Foto des Objektes
Zeichnung des ObjektesZeichnung des Objektes
Zeichnung des Objektes

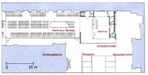
Erdgeschoss

Das Gebäude wurde geschaffen, um das funktional und optisch störende Abstellen von Fahrrädern auf dem Bahnhofsplatz zu beenden. Als Baugründstück diente eine Lücke zwischen dem Hauptgebäude des Bahnhofs und einem westlich gelegenen Verwaltungsgebäude.
_Die Bauanlage besteht aus einem dreigeschossigen kubischen Kopfbau und einer langgestreckten zweigeschossigen Zeile. Letztere ist eine einfache Stahl-Glas-Konstruktion und nimmt das eigentliche Fahrradparkhaus auf. Im Kubus befinden sich unten eine Servicestation mit Fahrradladen und in den beiden Obergeschossen Büros.
_Der Kopfbau ist an drei Seiten unterschnitten. Der öffentliche Raum schiebt sich gewissermaßen unter das Bauwerk. Dadurch werden ein kleiner Vorplatz und die Hauptzufahrt für die Radfahrer betont. Die unter das Gebäude gerückte Freitreppe spielt zugleich mit dem Höhenversprung zwischen Bahnhofsplatz und Bahnsteigen. Man kann über die Treppe direkt auf Gleis 1 gelangen. Zugleich wird deutlich gemacht, dass das Bauwerk sowohl zum Bahnhofsplatz als auch zur Bahnhofshalle wirken soll, was durch die rot lackierte Metallverkleidung des die Außenkonturen des Kubus umschreibenden Obergeschosses besonders unterstrichen wird.
_Die funktional notwendige optische Präsenz des Gebäudes sollte aber in der durch historische Bauten geprägten Umgebung nicht aufdringlich wirken. Für den Architekten stellte diese Anforderung eine „Gratwanderung zwischen Anpassung und Kontrast„ dar. Sein Ziel lag darin, „solide Gebrauchsarchitektur„ entstehen zu lassen.