Gartenstadt Vahr

Arbeitsgemeinschaft: Ernst May, Säume&Hafemann

Ernst May / Max Säume / Günther Hafemann

Gebäudetyp: Wohnhaus   | Stadtteil: Vahr  | Baujahr: 1954-1956  | Bauherr: GEWOBA, Bremer Treuhand  

Foto des ObjektesFoto des ObjektesFoto des ObjektesFoto des ObjektesFoto des ObjektesFoto des ObjektesFoto des ObjektesFoto des ObjektesFoto des ObjektesFoto des Objektes

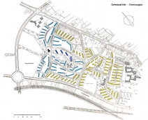
Lageplan mit Geschosshöhen

vorhandene Unterlagen

Plan (Städtebaulicher Entwurf) | Literatur -> Ernst May | Bremen und seine Stadteile |
+ Syring, Eberhard; Bremen und seine Bauten: 1950–1979, Bremen 2014: Carl Schünemann Verlag. (Seite: 135)

Vergleicht man den Lageplan der Gartenstadt Vahr mit dem der später gebauten Neuen Vahr, dann ist leicht zu erkennen, dass die Anordnung der Baukörper bei der Gartenstadt freier, "organisch" ist. In der Neuen Vahr werden Gebäudegruppen gleichen Typus meist strikt parallel angeordnet, hier sind sie leicht gegeneinander verschwenkt wie bei einem sich öffnenden Fächer.
_Der Lageplan ist stark durch die Handschrift von Ernst May geprägt. Als Frankfurter Stadtbaurat war er für den berühmt gewordenen Siedlungsbau der Stadt in den zwanziger Jahren verantwortlich. Nach seiner Emigration wurde May 1954 Leiter der Planungsabteilung der Neuen Heimat Hamburg und entwarf die Siedlung Grünhöfe in Bremerhaven.
_Nachdem die Neue Heimat der Gewoba beim Wiederaufbau der Westlichen Vorstadt als Kreditvermittlerin zur Seite stand, war das Engagement Mays wohl als Fingerzeig in die Richtung eines modernen Städtebaus gedacht, der ja in der westlichen Vorstadt nicht immer überzeugte. So geriet der nördliche Teil zu einer Demonstration des modernen Wohnungsbaus und mit seinen ca. 2000 Wohnungen zu einer Musternachbarschaft", gruppiert um einen Anger.
_Die südliche Hälfte des neuen Baugebiets "Gartenstadt Vahr" wurde von der Bremer Treuhand in traditioneller Bauweise realisiert.
_Obwohl der Begriff „Gartenstadt“ historisch gesehen für eine Siedlung mit Wohnblocks und zentralem Hochhaus nicht richtig ist, hat er sich gegen den ursprünglichen Vorschlag „Grünstadt“ durchsetzen können.