Mit der zweigiebligen, auf Weserrenaissance anspielenden historistischen Fassade seines Kopfbaus reiht sich das 1912 für die Diskontobank fertig gestellte große Bauwerk als Hintergrundsfigur in das Ensemble des Marktplatzes ein. Nach wechselvoller Geschichte wurde das Gebäude zuletzt in ein Büro- und Geschäftshaus mit integrierter Passage umgebaut.
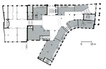
Städtebaulich fungiert es dabei als Verbindung zwischen dem traditionellen kommerziellen Zentrum Bremens um Söge- und Obernstraße und dem mit dem Schlachte-Ausbau neu erschlossenen Weserufer. Die übliche Funktion einer Passage als Abkürzung durch einen geschlossenen Baublock wird in diesem Fall allerdings durch die baulichen Vorgaben erschwert, weil sich der innere Weg parallel zur Langenstraße entwickelt weil das Hauptniveau der Passage deutlich über dem Straßenniveau liegt.
Aus diesem Grund ist die Passage wesentlich durch vier Treppenanlagen geprägt, wobei der Treppe am ehemaligen Hauptzugang von der Langenstraße nur noch eine Nebenrolle zukommt. Am eindrucksvollsten ist sicherlich die diagonal in das Bauwerk „hineingeschnittene“ sich konisch verjüngende Treppe, über die man den Bau vom Marktplatz aus betritt. Sie läuft auf einen kleinen Lichthof als optischen Zielpunkt zu.
Von dort gelangt man, begleitet von gläsernen Ladenfronten in einen zweiten, größeren Lichthof, der das Zentrum der Anlage bildet. Im Gegensatz zu der üblichen ins Unübersichtliche tendierenden optischen Vielfältigkeit von Ladenpassagen überrascht in den beiden Lichthöfen die Strenge und Klarheit der „inneren Fassaden“, die von neorationalistischen Stilmotiven angeregt scheinen. In der hier erkennbaren Monumentalität entsteht eine Korrespondenz und zugleich ein Kontrast zum historischen Objekt.
O-Ton
Anerkennung BDA-Preis 2002
„Dieser Zusammenhang stellt sich ausschließlich durch Geste und Haltung her, denn weder in der Formensprache noch in den Materialien lassen sich irgendwelche direkten Bezüge zwischen historischem Außenbild und neuem Innenraumerlebnis des Kontorhauses finden. Diese „interpretierende Umsetzung“ einer vorgegebenen Zeitschicht des Historismus in eine kompromisslos heutige Erscheinung stellt einen interessanten Beitrag zum Thema Umnutzung historischer bauten dar.“
Aus der Beurteilung der BDA-Preis-Jury
