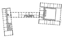
Als Brückenkopf der geplanten neuen Weserbrücke hatte dieser erste Behördenneubau der Nachkriegszeit gleich zwei eigenständige Nutzer aufzunehmen.
_Der Architekt löste die Aufgabe, indem er für jeden einen markanten Baukörper wählte. Das Wasser- und Schifffahrtsamt, ein sechsgeschossiger rechteckiger Block, richtet sich mit seiner Hauptseite zur Weser aus. Ein zur Kleinen Weser gelegener dreigeschossiger Kubus nimmt das Kataster- und Vermessungsamt auf. Verbunden sind die leicht gegeneinander verschwenkten Baukörper durch einen länglichen zweigeschossigen Trakt.
_Durch die Anordnung der drei Bauteile entsteht an der Seite zum Teerhof ein platzartiger Vorbereich, der den Eingang des Katasteramtes betont. Von hier gelangt der Besucher in einen beeindruckenden Innenraum – eine lichte glasgedeckte Halle.
O-Ton
Mir scheint, dass in Bremen mit dem Neubau der Wasser- und Schiffahrtsdirektion und des Katasteramts eine Baugruppe entsteht, die eine Frühform des Geistes repräsentiert, die das nächste Halbjahrhundert bestimmen wird. Hier fehlen alle modern-spielerischen Elemente, die sich so oft als billige Tauschware über pseudomoderne Fassaden legen.
_Alles stützt sich auf die Grundgesetze von Proportion und Rhythmus, auf die Erprobung des elementaren Ornaments, was sich in der entschlossenen Verwendung von nur zwei, zudem verwandten Fensterformaten überzeugend durchsetzt. Die Gruppe erhält dadurch eine Struktur von logischer Klarheit und Würde. Zweck, Material und Konstruktion erscheinen in ausgewogenem Gleichgewicht, aber untergeordnet der Ordnungskraft menschlichen Geistes, die dem Werk das Gepräge schöner Freiheit sichert.
(Herbert Albrecht in der Bremer Volkszeitung, 29. 1. 1955)
