Jahre vor dem Bau der Universität entstand Bremens erstes Studentenwohnheim für Studierende der Fachhochschulen und für Praktikantinnen und Praktikanten. Das auf dem Gelände der Norddeutschen Mission gebaute Haus sollte überwiegend Studierenden aus ärmeren außereuropäischen Ländern ein Heim zu erschwinglichen Preisen bieten.
_
Um dies zu gewährleisten, musste der Bau selbst äußerst sparsam konzipiert werden. Dem Architekten ist es gelungen, mit diesem Zwang auch ästhetisch souverän umzugehen. Überraschende Detaillösungen zeugen davon: neben dem schalungsrauen Sichtbeton sind vor allem das mit Fehlbränden durchsetzte Ziegelmauerwerk und die Waschbetonplatten als Bodenbelag innen wie außen zu nennen.
_
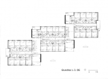
Im Erdgeschoss befinden sich ein zentraler Gemeinschaftsraum, die Heimleiterwohnung und diverse Nebenräume. Die 72 Zimmer in den drei Obergeschossen sind zu je acht um einen Mittelflur angeordnet, der durch eine geschickte Staffelung des Baukörpers beidseitig belichtet wird. In Querrichtung zu den Fluren verlaufen zwei öffentliche Bereiche mit Gemeinschaftsküche auf der einen, Gruppenraum auf der anderen Seite und mit Balkonen als Endpunkte. Diese „Brutzelküchen“ sollten die Kommunikation unter den Bewohner aus den unterschiedlichen Kulturkreisen befördern.
