Mehrfamilienhaus im Rembertiviertel

Architekt: Meyer-Burg, Volkhard

Gebäudetyp: Wohnhaus   | Stadtteil: Mitte  | Baujahr: 1983  | Bauherr: Dr. Hübotter Wohnungsbau GmbH  |
Straße: Fedelhören 15  

Foto des ObjektesFoto des ObjektesFoto des Objektes
Zeichnung des ObjektesZeichnung des ObjektesZeichnung des ObjektesZeichnung des ObjektesZeichnung des ObjektesZeichnung des ObjektesZeichnung des Objektes
Zeichnung des Objektes

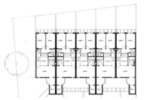
Obergeschoss Reihenhaus

Die innerstädtische Gebäudegruppe besteht aus einem mehrstöckigen Mehrfamilienhaus mit 22 Wohnungen und zwei Läden, an welches rückseitig noch fünf zweistöckige Reihenhäuser angegliedert sind. Das Projekt entstand im Rahmen der Sanierung eines Quartiers, das zehn Jahre zuvor mit der Mozart-Trasse und einem 26-stöckigem Verwaltungshochhaus noch eine ganz andere städtebauliche Entwicklung einzunehmen schien.
_Die einst am Stadtrand ausprobierten Formen verdichteter Wohnanlagen, die man gern mit dem Prädikat „urban“ belegte, konnten nun tatsächlich in einen urbanen Kontext eingefügt werden. So viele Menschen auf einem Grundstück dieser Größe unterzubringen, ist eine Kunst. Betrachtet man die ausgefeilten Grundrisse, wird man feststellen, dass diese Kunst sogar eine gewisse ornamentale Qualität aufweist.
_Ästhetisch ist hier noch wenig von dem sich anbahnenden Neuhistorismus zu spüren. Die Form scheint sich ganz aus dem Grundriss zu entwickeln – auch wenn dem Hang zur abgefasten Ecke etwas Zwanghaftes eigen ist.